Property Detail

215 7th

Los Angeles CA 90014

$550,000

Status: Active

Property Details

Description

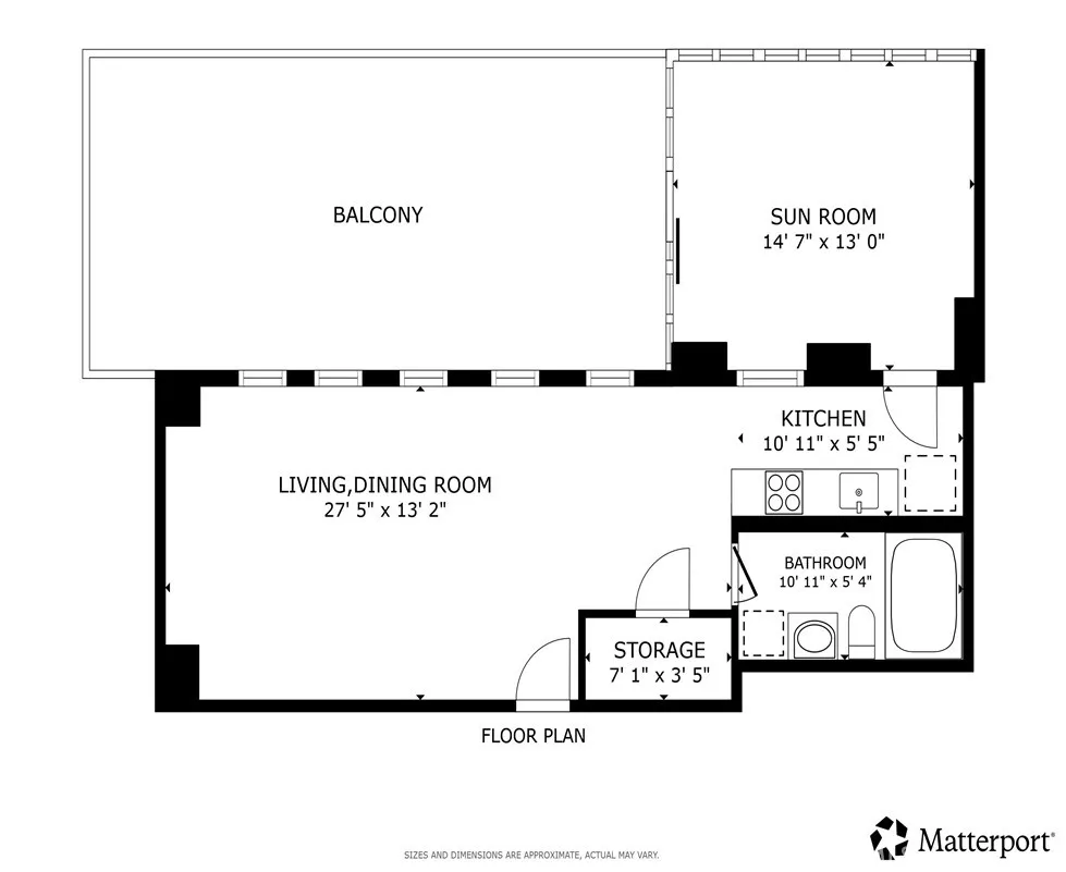
Iconic Penthouse Loft Living in the Historic Bartlett Building Perched high above the city in the renowned Bartlett Building, this penthouse residence captures the essence of Downtown Los Angeles living, where historic architecture meets modern design. This light-filled loft features soaring ceilings, oversized industrial windows, and exposed brick that create a warm yet striking interior. The open-concept layout offers flexibility for living, working, and entertaining, all framed by sweeping city views and abundant natural light. A thoughtfully converted flex space adds versatility, ideal for a home office, creative studio, or guest area. The kitchen was completely reimagined in 2021, blending clean, contemporary finishes with elevated functionality, while the living space continues to honor the buildings original character, rich textures, volume, and a true loft aesthetic. A rare highlight, the expansive private balcony extends the living space outdoors, offering room to unwind, entertain, or take in the skyline from above. Residents of the Bartlett enjoy a beautifully restored historic building with a rooftop deck featuring panoramic city views, along with the Mills Act for potential property tax savings (buyer to verify). Located in the heart of DTLA, just moments from Whole Foods, the Ace Hotel, Metro access, and some of the citys best dining, coffee, and culture, this is urban living at its most vibrant and connected.

Map Location

Listing provided courtesy of Suzanna Storm of Redfin Corporation. Last updated . Listing information © 2025 SANDICOR.

The Worland Group
Inquire Now
admin Real estate https://static.royacdn.com/Site-d7afb3ed-06c5-4cde-a376-77d1b8c38485/assets_mockup/contact_logo.png realtor # # # https://static.royacdn.com/Site-d7afb3ed-06c5-4cde-a376-77d1b8c38485/assets_mockup/contact_logo.png