Property Detail

16520 Greystone

La Mirada CA 90638

$849,000

Status: Active

Property Details

Description

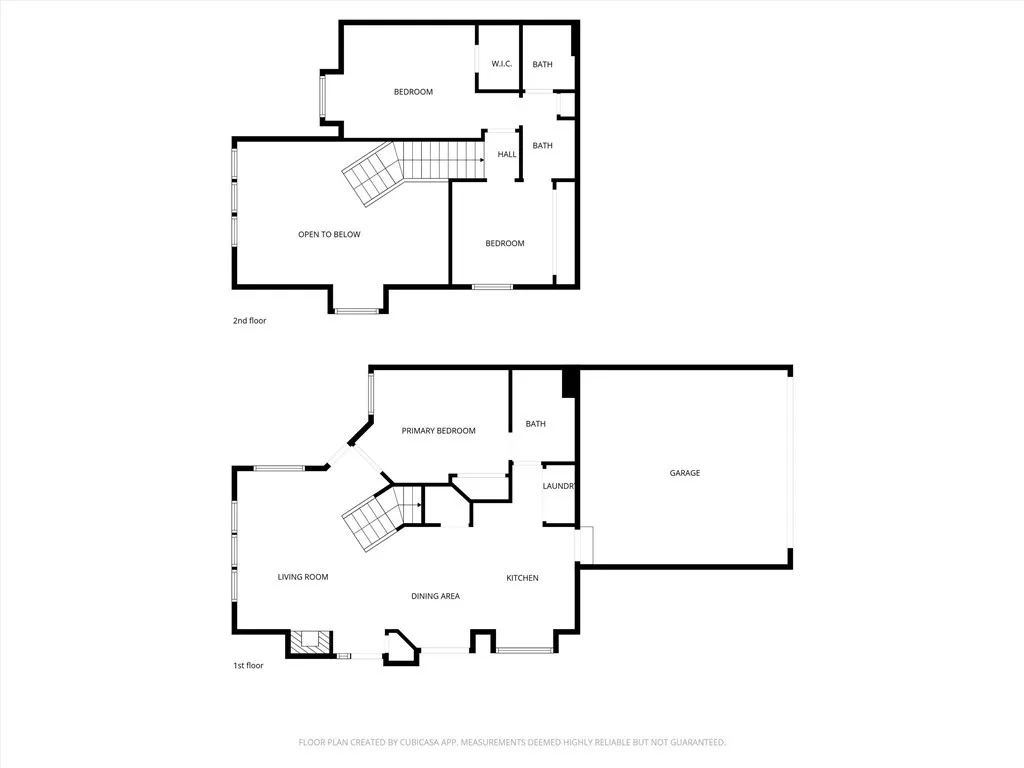
SIMPLY CHARMING! Step into a bright, inviting space where light, comfort, and style come together in perfect harmony. Located at the back of a quiet, beautifully maintained community and attached on only one side, this home offers privacy, serenity, and an unbeatable location. This two-story gem features three bedrooms and two bathrooms with dramatic cathedral ceilings and a thoughtfully designed open floor plan ideal for entertaining or everyday living. The cozy living room with fireplace flows effortlessly into the dining area, creating a warm, welcoming atmosphere for family and friends. The chefs kitchen dazzles with granite countertops, tile backsplash, white cabinets, stainless steel and black appliances, trey ceiling, walk-in pantry and solarium windows that flood the space with light. The main-floor bedroom offers a private bath and closet with serene views of the fenced back patio and mature trees. Upstairs, the elegant master suite features vaulted ceilings, a full bathtub, a spacious walk-in closet, and views of mature trees that create a tranquil retreat. Throughout, youll find beautiful SPC vinyl flooring, scraped ceilings, recessed lighting, a ceiling fan, freshly painted walls, and convenient downstairs laundry. Enjoy two fully fenced patios, perfect for morning coffee, outdoor entertaining, or simply relaxing in peace. Direct access to the two-car garage and guest parking adds ease and convenience. Central air and heat ensure year-round comfort. Residents also enjoy community amenities including a pool and spa. Ideally located near Los Coyotes Country Club,

Map Location

Listing provided courtesy of Peter Suk of Reshape Real Estate. Last updated . Listing information © 2025 SANDICOR.

The Worland Group
Inquire Now
admin Real estate https://static.royacdn.com/Site-d7afb3ed-06c5-4cde-a376-77d1b8c38485/assets_mockup/contact_logo.png realtor # # # https://static.royacdn.com/Site-d7afb3ed-06c5-4cde-a376-77d1b8c38485/assets_mockup/contact_logo.png