Property Detail

6960 Lilac Rd

Bonsall CA 92003

$899,000

Status: Active

Property Details

Description

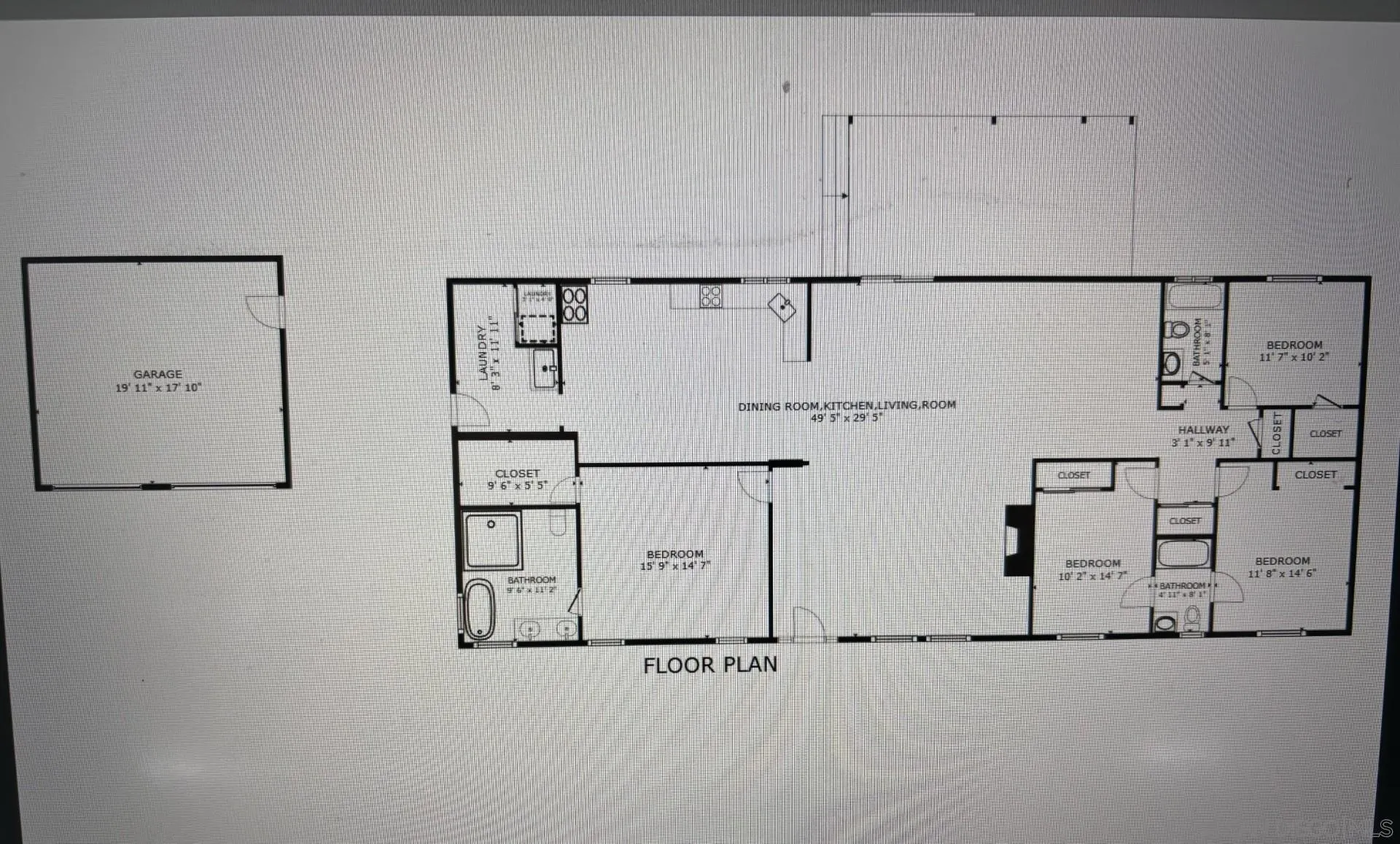
Handyman Special! Opportunity Awaits, Partially Updated Santa Fe Style Home On 2.5 Acres, Newer: A/C, Flooring, Glass Garage Doors, Primary Bathroom w/ Steam Shower & Soaker Tub, Windows (some still need installation but material is there), Wainscoting In Living Area, Tankless Hot Water Heater. 9' Flat Ceilings. Needs Finishing Touches, Exterior Paint & Stucco Repair, Int. Paint, Yard Clean Up, Etc. The Kitchen And Other Bathrooms Are Original. Homes In The Area Updated Are Around $1.2M

Map Location

Listing provided courtesy of Eric Charlebois of Compass. Last updated . Listing information © 2025 SANDICOR.

The Worland Group
Inquire Now
admin Real estate https://static.royacdn.com/Site-d7afb3ed-06c5-4cde-a376-77d1b8c38485/assets_mockup/contact_logo.png realtor # # # https://static.royacdn.com/Site-d7afb3ed-06c5-4cde-a376-77d1b8c38485/assets_mockup/contact_logo.png